Grond en nieuwbouwwoning

Prijs € 569.800,00
Afspraak maken

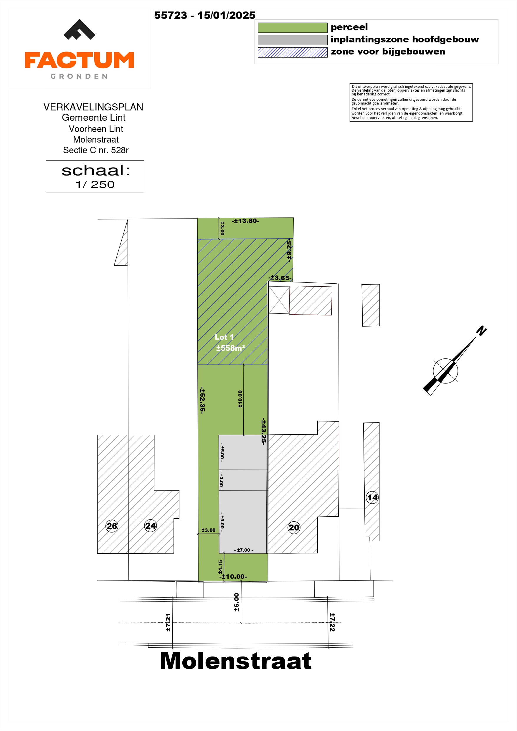
Lint, Molenstraat 22.

Dit lot biedt plaats voor het bouwen van een halfopen woning. Gelegen in een zeer rustige en residentiële straat, biedt dit perceel de perfecte omgeving voor wie op zoek is naar rust en ruimte. De straat is omgeven door veel groen, en de tuin kijkt uit op een bosgebied, wat zorgt voor een rustige en natuurlijke sfeer. Het centrum van Lint ligt op slechts 1,5 km afstand en is gemakkelijk te voet bereikbaar via de Molenvoetweg. Het station van Lint bevindt zich op 2 km, en de bushalte aan de Lintsesteenweg is slechts 500 meter verder, wat zorgt voor uitstekende bereikbaarheid met het openbaar vervoer. Dit lot biedt de ideale balans tussen een rustige, groene locatie en de nabijheid van alle voorzieningen. Bij Verelst weten we hoe belangrijk het bouwen van een nieuwe thuis is. Al onze woningen worden volledig op maat én sleutel-op-de-deur gebouwd. Elk project benaderen wij à la carte waardoor jij jouw droomhuis volledig vorm kan geven, gaande van de bouwstijl, over de indeling, tot en met de materiaal- en kleurkeuzes. Wij bouwen voor jou een thuis die duurzaam, energiezuinig en futureproof is: klaar voor de toekomst, én klaar voor de volgende generaties. Elke nieuw woning is minimaal Meer dan Bijna Energie Neutraal, waardoor jij tal van voordelen geniet. Graag begeleiden wij je van A tot Z bij het zorgeloos realiseren van jouw woondroom. Neem zeker contact voor een vrijblijvend kennismakingsgesprek via woningbouw@verelst.be of bel 015 30 03 60.
Lot Type Bebouwing Slpk's Bew opp. Grond opp. Prijs excl.
00 Halfopen 3 0 m2 558 m2 € 569.800,00 Meer info
    • Lot 00
    • Type Bebouwing Halfopen
    • Slpk's 3
    • Bew opp. 0 m2
    • Grond opp. 558 m2
    • Prijs excl. € 569.800,00
    Meer info

Contacteer ons!

Jij wil gaan bouwen of verbouwen? Contacteer ons dan voor vrijblijvend advies.